事業用
二階町貸店舗S
賃料 19.80万 円
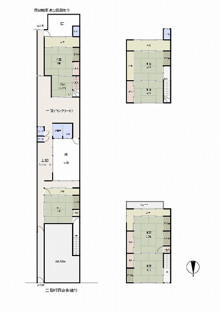
間取り --
- 所在地
- 丹波篠山市二階町41
- 交通
- JR福知山線 篠山口駅より 約4900m
- 間取り
- --
- 間取り詳細
- --
- 専有面積
- 280.96㎡
- 築年月日
- 1926年1月
- 向き・所在階
- --
- 種別
- 一戸建て
- 設備など
- 上下水道・トイレ、都市ガス
- 賃料
- 19.80万円
- 敷金
- なし
- 共益費
- -
- 礼金
- 2ヶ月
- 管理費等
- --
- その他費用
- --
- 駐車場
- *駐車場有(4400/月 2台あきあり)
- 住宅保険
- 加入必要です
- 保証会社
- 賃貸保証会社加入必要:保証会社事務手数料として契約時に家賃100%が必要です。 ・家賃引落手数料440円(消費税込み) ・更新手数料22000円/毎年
- 備考
- *業種については相談必要です。
- 建物構造
- 木造
- 総戸数
- --
- 土地面積
- --
- 契約期間
- 3年
- 更新料
- なし
- 生活環境
- --
- 小学校
- --
- 中学校
- --
- 現況
- 一部 賃貸中
- 入居可能日
- 2026年3月上旬予定
- 取引態様
- 媒介
- 仲介手数料
- 家賃の1ヶ月分+消費税
- 情報公開日
- 2025年12月26日
- 次回更新予定日
- 2026年01月31日
物件の詳細情報は、お気軽にお問い合わせください。
※間取りなどは概略です。(現況を優先いたします)

Contact




























